989 6TH 6AVE MIDTOWN MANHATTAN

74-story commercial high-rise office building located in the heart of Midtown Manhattan.
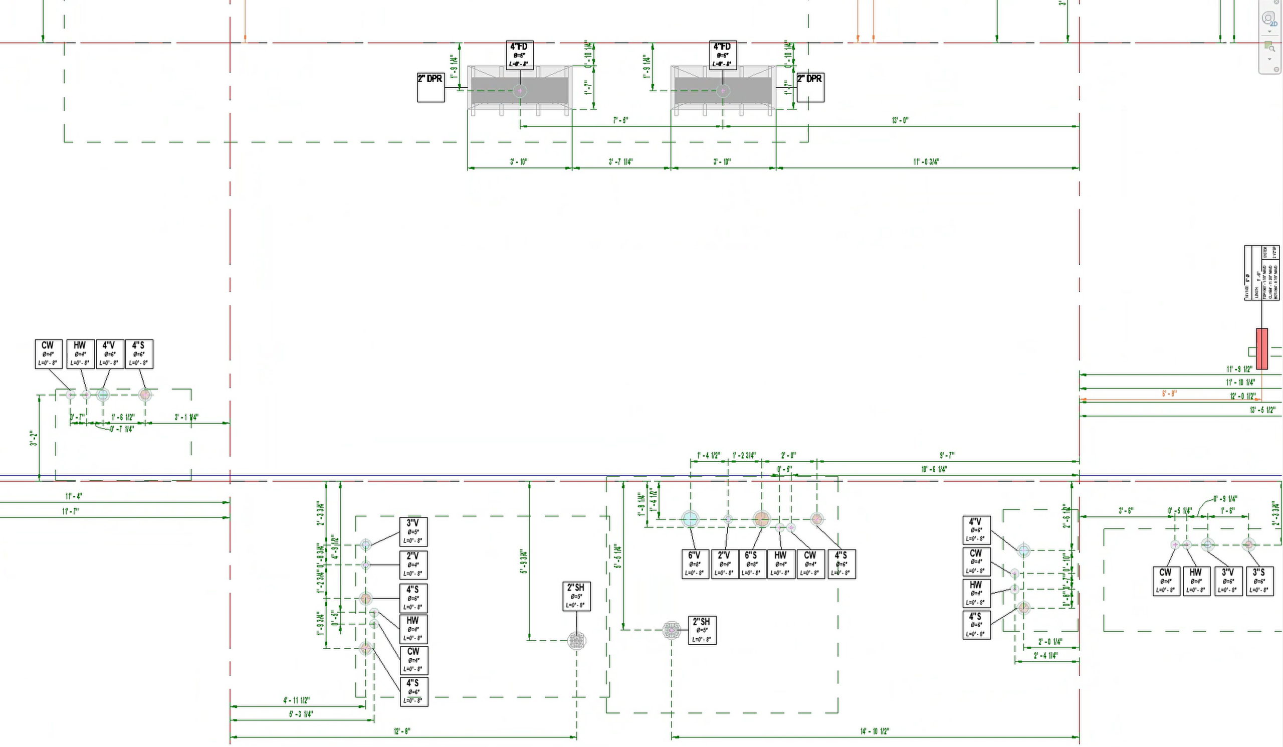
I was responsible for modeling plumbing and fire protection systems in Autodesk Revit — from riser coordination to detailed floor layouts.
This project enhanced my understanding of complex BIM workflows in large-scale commercial environments.
Scope: Domestic Water, Sanitary, Fire Protection.